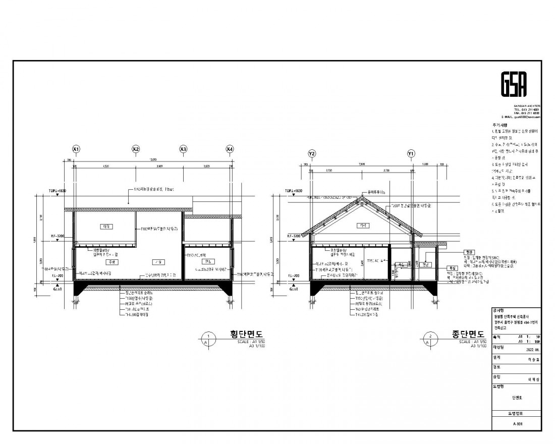
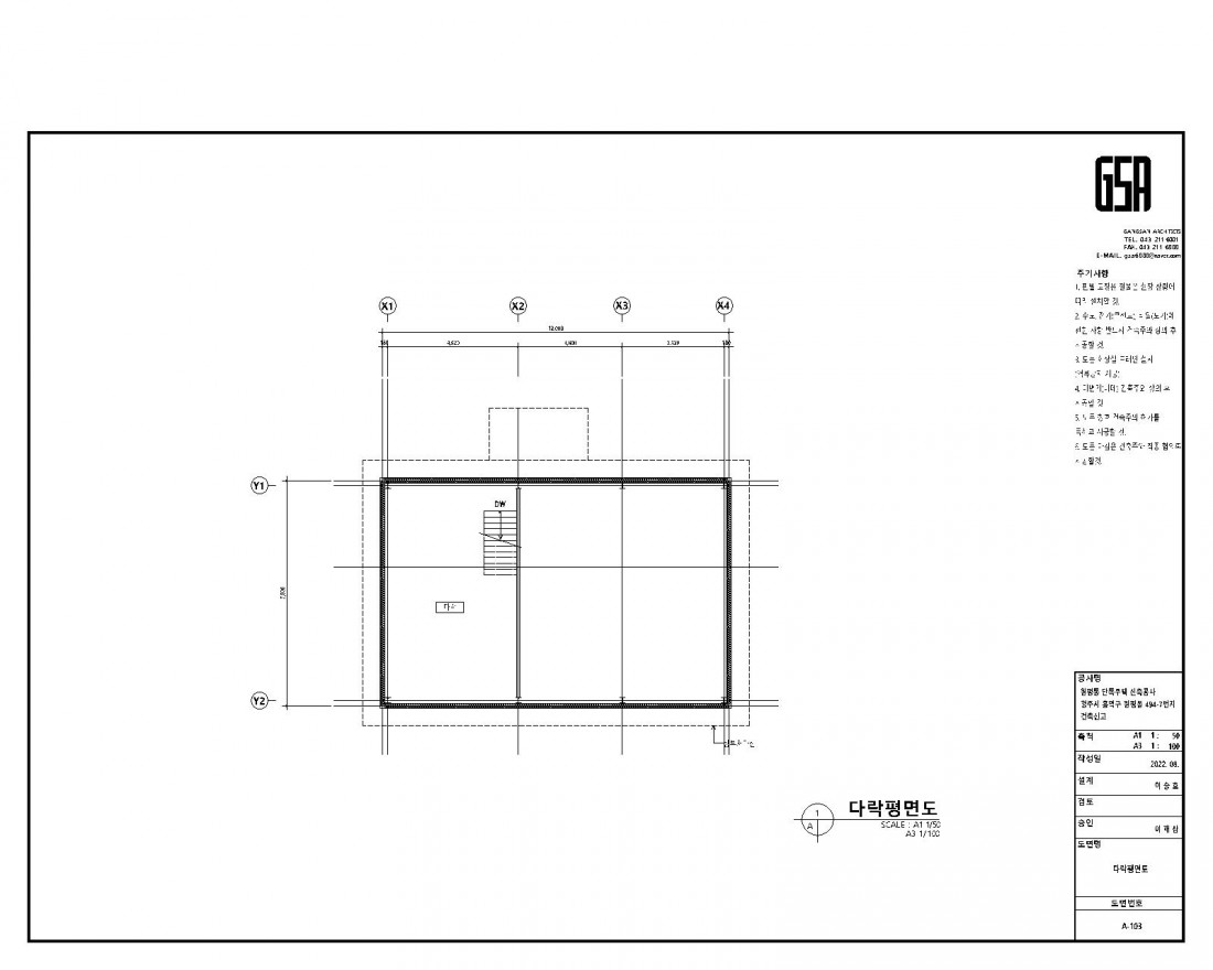
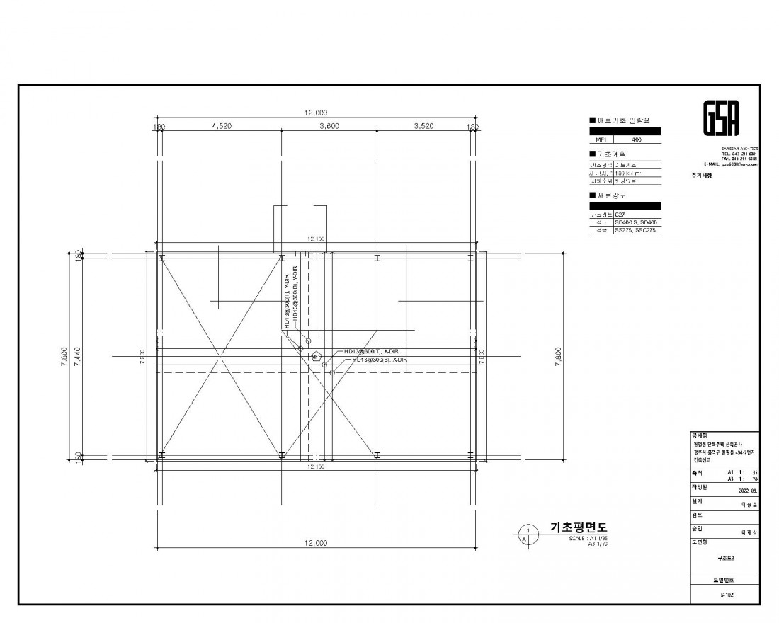
7.8*12.1 총 평수 28.6평 샘플H빔철골 도면 견적상담은 전화로 주세요.,
페이지 정보

본문
7.8*12.1총 평수 28.6평 샘플H빔철골 도면 견적상담은 전화로 주세요.,ㅗh빔골조만 판매하고 있습니다.
010-9468*2217 ![]()
![]()
![]()
- 이전글동국제작,현대제철, 포스코 H빔의 신재.사용 자재공급승인원및 납품서 제공 25.12.07
- 다음글철강 밀고 이차전지 끌고… 국내 첫 포스코그룹주 ETF 나왔다 23.10.17
댓글목록
등록된 댓글이 없습니다.

