로고

다온테마
로그인 회원가입
  • 철강,C형강,각파이프
  • H빔시공
  • 철강,C형강,각파이프

    H빔시공 게시판입니다.

    H빔시공

    H빔시공 게시판입니다.

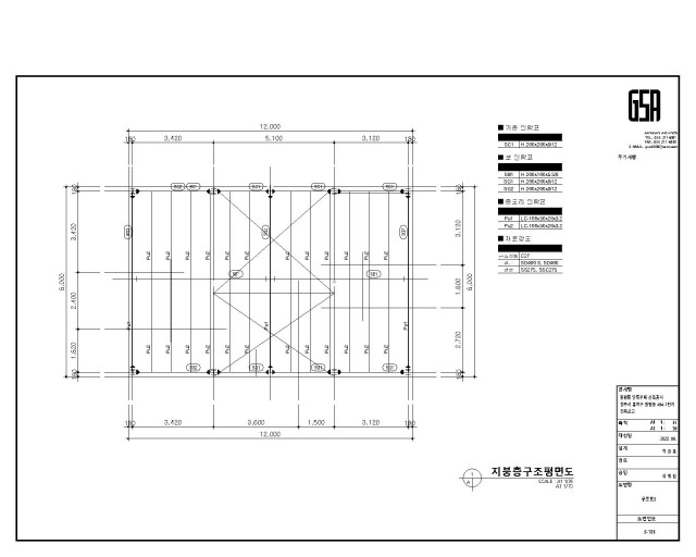
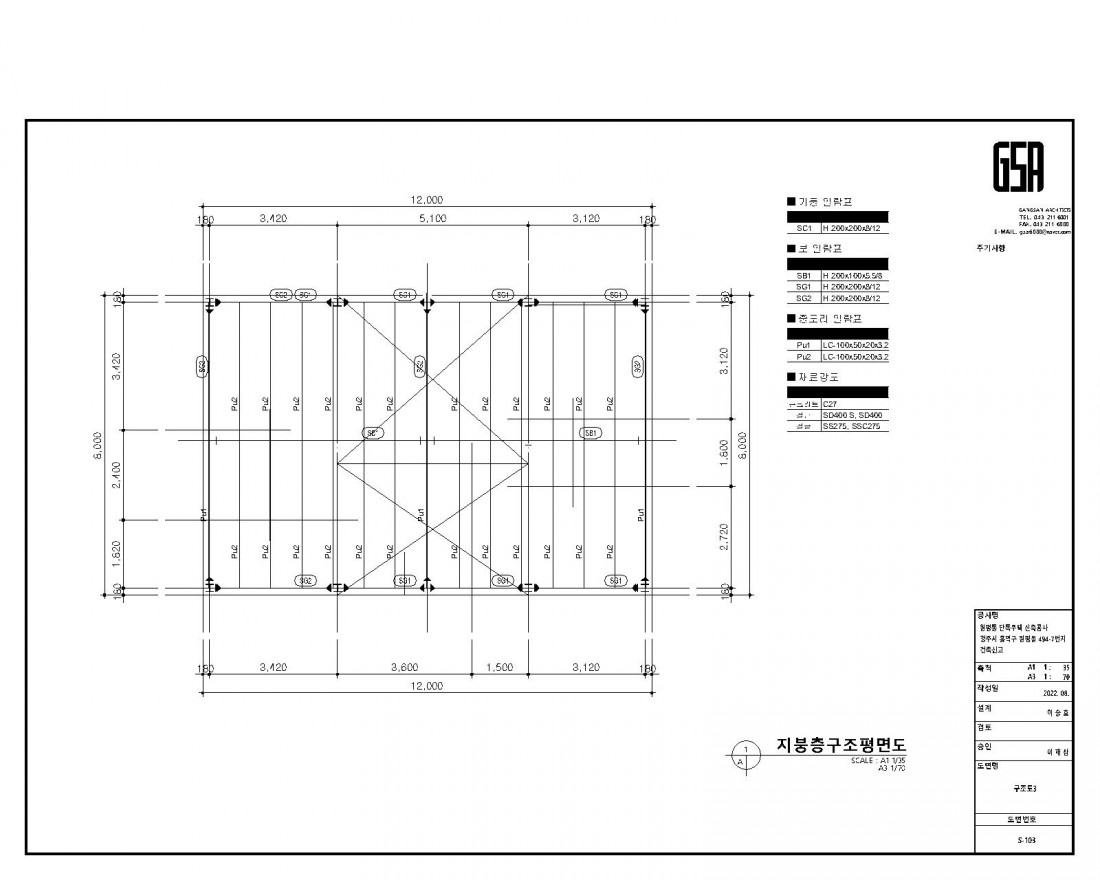
    원평동 1- 지붕구조도.jpg

    29평 철골 도면과 견적서

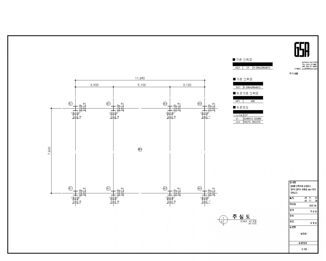
    간략설명 200*200H빔 기둥

    목록으로

    본문

    상세설명

     

    이도면에 

     

    이도면의 견적서 상담은 넓이 8*12-29평

    010-9468-2217

    원평동 1- 지붕구조도.jpg

     

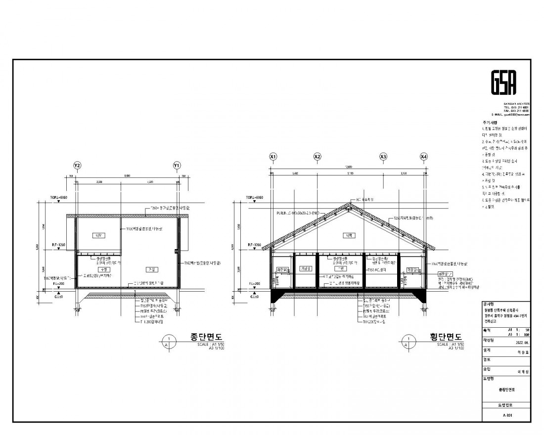
    원평동 1-단면도.jpg

     

    원평동 1-주심도.jpg

     

    원평동 1-지붕평면도.jpg

     




    댓글목록

    등록된 댓글이 없습니다.